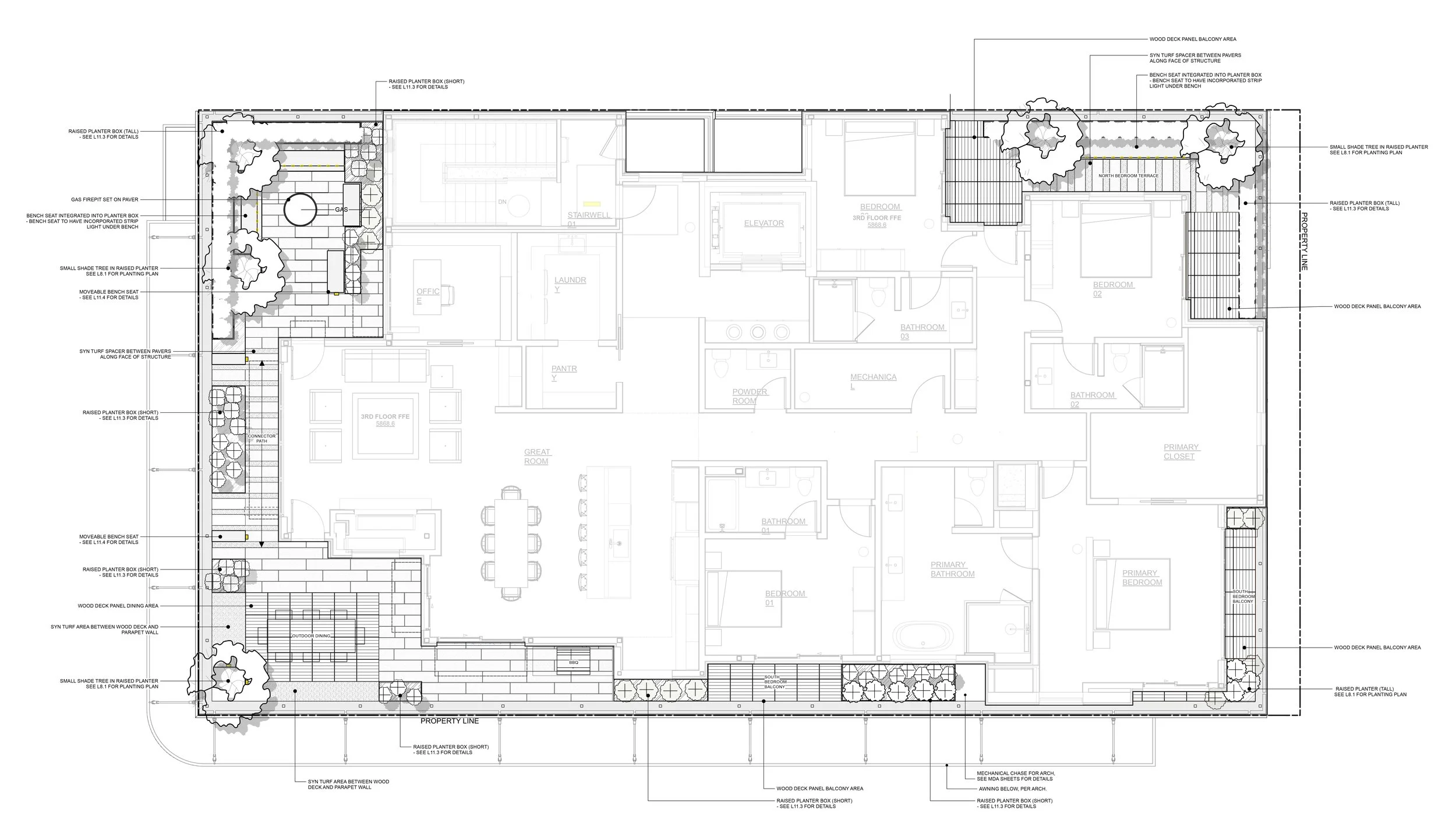
mixed use development located in downtown Ketchum, ID
architecture: Michael Doty Associates (MDA)
landscape architecture: FORM.studio
location: Ketchum, ID
project status: under construction




architecture: Michael Doty Associates (MDA)
landscape architecture: FORM.studio
location: Ketchum, ID
project status: under construction